MBG NUEVA ARQUITECTURA

  • INICIO
  • PROYECTOS
  • ESTUDIO MBG
  • CONTACTO

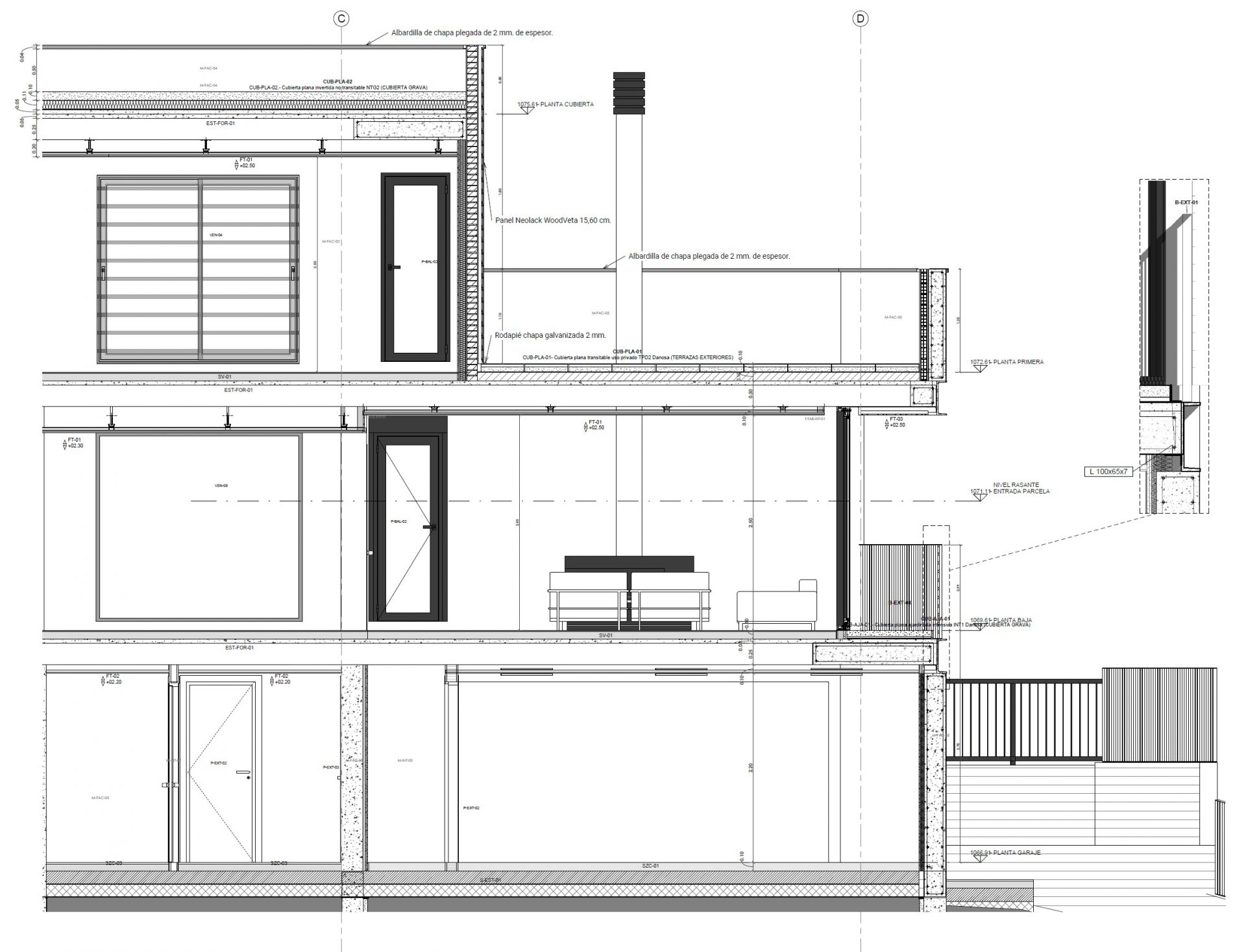
VIVIENDA UNIFAMILIAR

Visual Portfolio, Posts & Image Gallery para WordPress

ANTERIOR

← VIVIENDAS EN ALTURA

SIGUIENTE

CONCESIONARIO MERCEDES-BENZ →
Política de privacidad

Política de privacidad

@ Copyright 2020. Todos los derechos reservados. MBG Nueva Arquitectura S.L.